House Eline & Wietse

Renovation of a town house and a barn in Leuven

House Eline & Wietse

Renovation of a town house and a barn in Leuven

Year: 2018

Status: Built

Program: Individual house

Location: Nijlen , Belgium

Budget: 200.000 exc. VAT

Surface: 279 m²

Client: private

Stability: Util

Energy: Feys BV

Photographer: Sépideh Farvardin

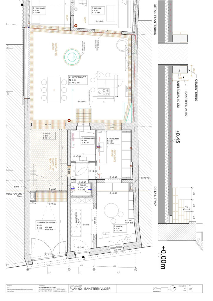
Our clients bought a neogothic townhouse in Leuven, with a huge barn behind it that gives the house a surprisingly rural atmosphere. Our project relocates the centre of the house in the space between house and barn and connects both parts of the house. A glass roof brings plenty of light into this central living room, that is surrounded by a series of smaller spaces: entrance, kitchen, seating space, and garden room. We empty out the barn and create a covered garden and a guestroom floor. The material choices reinforce the double condition of rural and urban.